2A/06
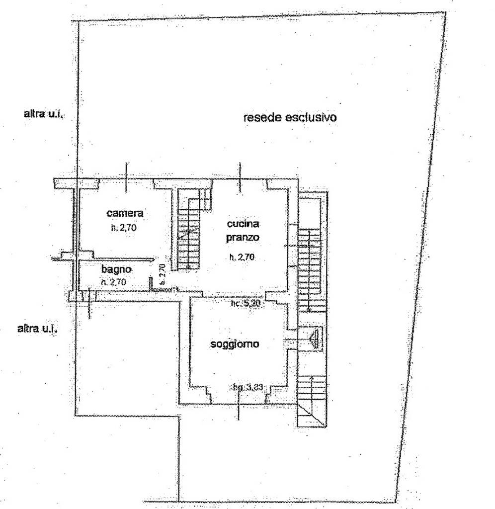
Nel comune di Colle di Val d’Elsa a circa 2 km dalla frazione delle Grazie moderno terratetto angolare di recentissima realizzazione. La proprietà è ubicata all’interno di una piccola lottizzazione con tipologia a schiera realizzata nel 2016 dove sono presenti solo n.3 terratetto. L’immobile di concezione moderna ha una classe energetica A, è un terratetto angolare libero su tre lati con uno sviluppo su tre livelli principali di cui due piani fuori terra e dispone di una superficie commerciale complessiva di 180 mq oltre al locale autorimessa ed al giardino dislocato su più fronti. L’abitazione si compone al piano terreno di un ampio soggiorno, sala da pranzo con angolo cottura, camera matrimoniale, bagno finestrato oltre ad un grazioso giardino tenuto perfettamente della superficie di 200 mq c.a; al piano superiore troviamo una camera da letto matrimoniale, bagno finestrato ed una zona soppalcata da utilizzare quale ulteriore camera da letto; al piano seminterrato troviamo una zona adibita a rustico, il vano tecnico oltre al locale autorimessa. La proprietà è stata realizzata nel 2016 con dotazioni impiantistiche all’avanguardia che garantiscono un elevato comfort oltre ad elevate prestazioni energetiche. Solo per fare un piccolo inventario delle dotazioni impiantistiche è presente riscaldamento a pannelli radianti sotto pavimento, caldaia a condensazione corredata di bollitore con integrazione del termico solare per la produzione dell’acqua calda, punto cottura ad induzione, addolcitore, sistema di recupero delle acque piovane, infissi di ultima generazione, impianto d’irrigazione per giardino, impianto domotico di base, ecc. Le finiture sono di ottimo livello, le utenze sono indipendenti e gli impianti ovviamente certificati. L’oggetto è una rarità perché ubicato in contesto urbano ma in una posizione riservata e verdeggiante.
















